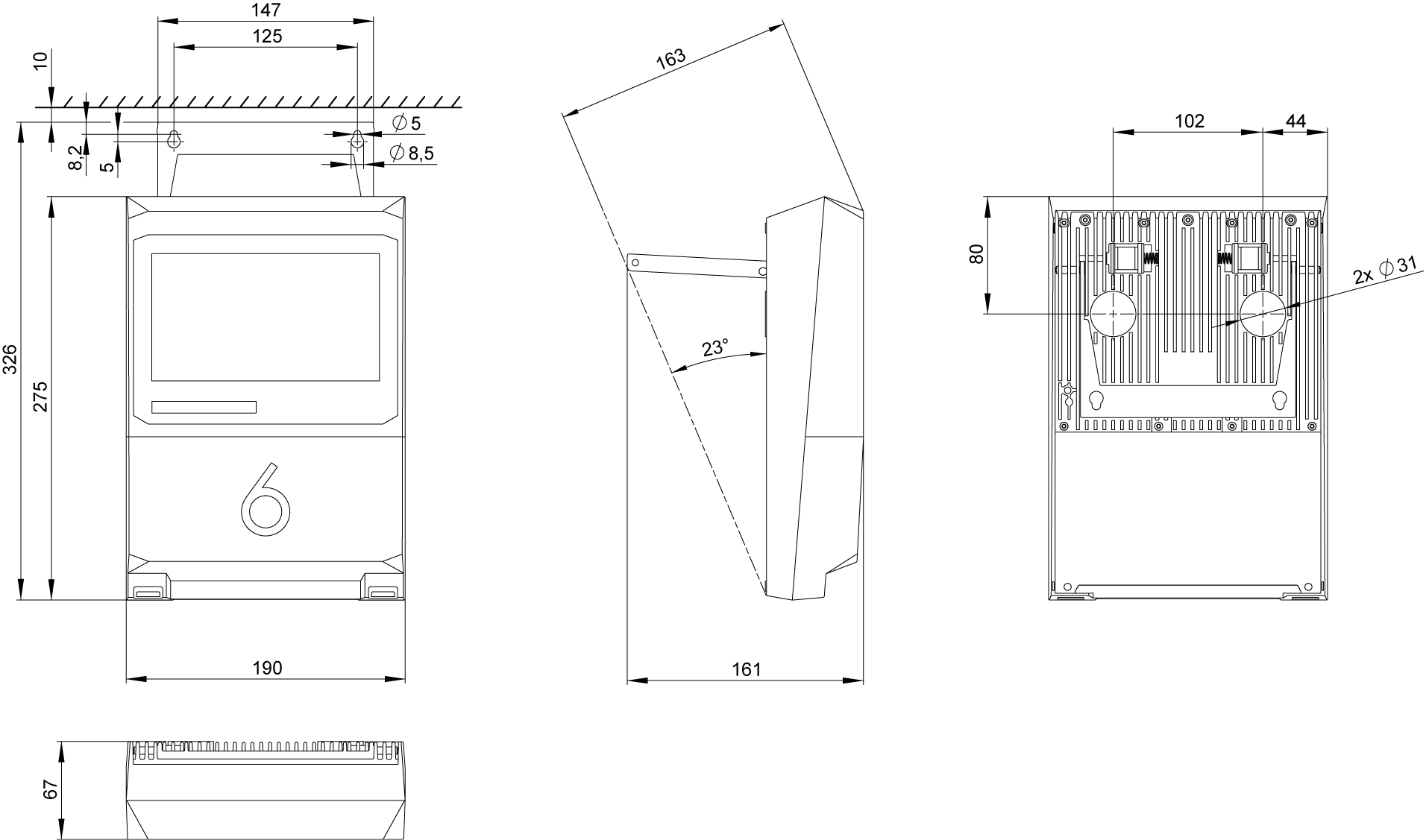
HB-GATE61